cerca immobile

cerca
vedi tutti

home / ricerca / Appartamento

Appartamento in vendita a Valeggio sul Mincio

RIF. 444 Valeggio sul Mincio
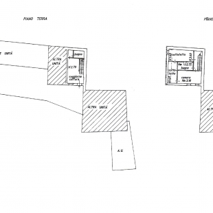
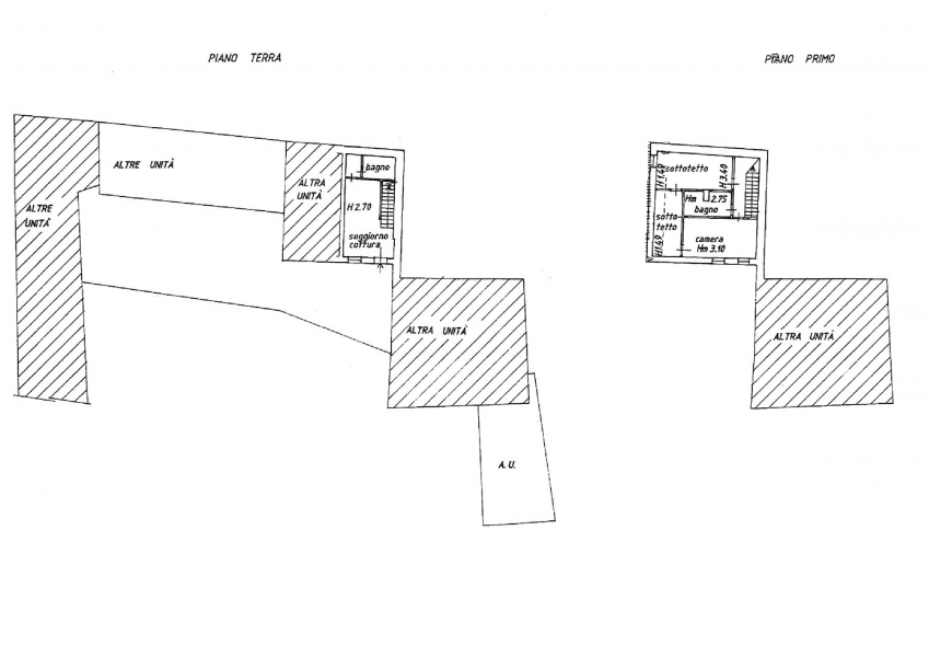
Appartamento su due piani con garage
12/11/2025

Prossimo al centro di Valeggio sul Mincio, comodo a tutti i principali servizi e inserito in un contesto di corte, proponiamo in vendita un appartamento su due livelli con garage e posto auto esterno.

Al piano terra troviamo una zona giorno con angolo cottura, un antibagno e un bagno con doccia. Attraverso una scala interna a vista si accede al piano primo, dove troviamo un'ampia camera matrimoniale con un comodo sottotetto, un bagno con vasca e un'ulteriore stanza da adibire a cameretta o ad altra funzione a seconda delle esigenze. Completano la proprietà un garage singolo al piano terra e un comodo posto auto antistante.

Classe Energetica: E

L'appartamento viene venduto non arredato, ma i proprietari sono disposti a lasciarvi la cucina.

Prezzo € 200.000

scarica scheda vedi zona (mappa)

« torna alla ricerca

richiedi informazioni sull'immobile:

invia
cancella