cerca immobile

cerca
vedi tutti

home / ricerca / Rustico

Rustico in vendita a Castelnuovo del Garda

RIF. 125 Castelnuovo del Garda
Rustico con ampio terreno agricolo a Castelnuovo del Garda
10/02/2023

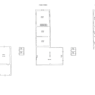
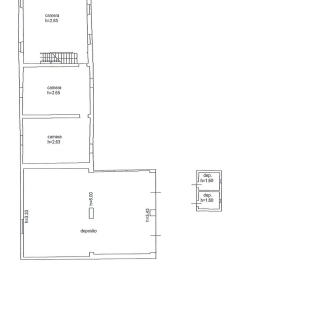
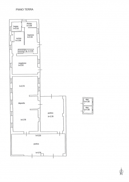
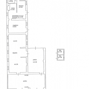
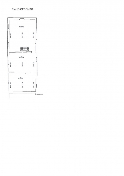
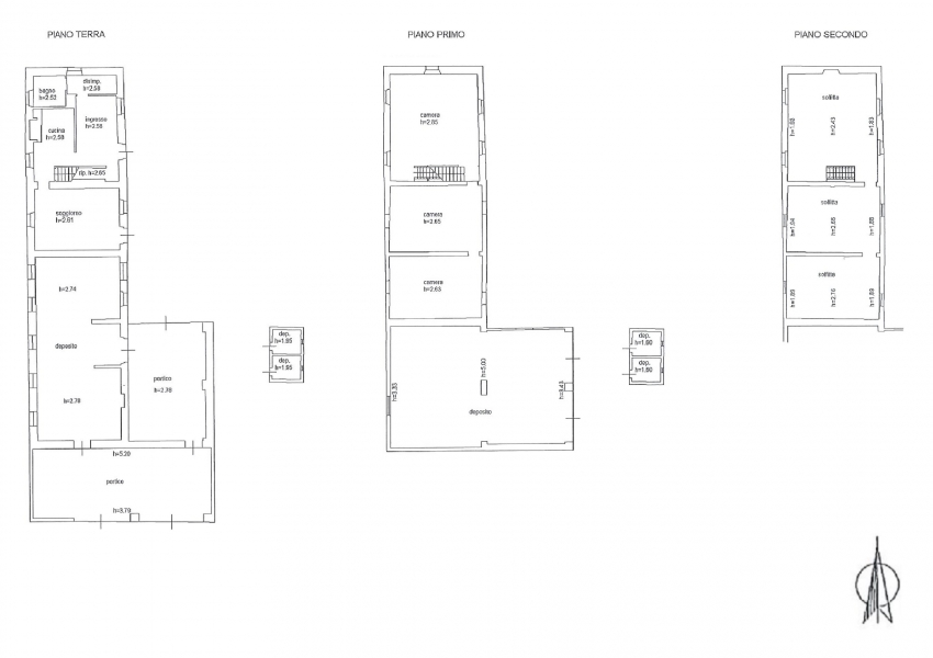
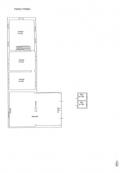
Immerso nella campagna veronese e allo stesso tempo comodo al paese, offriamo in vendita un ampio rustico singolo disposto su tre livelli, con portico e accessori vari. Nella vendita è incluso un terreno di proprietà di 31.000 mq circa, di cui circa 18.000 a seminativo e circa 13.000 a vigneto. Il rustico, completamente da ristrutturare, si compone di un'unità abitativa e di una stalla con portico e fienile. Ideale per qualsiasi attività ricettiva, quale ad esempio un agriturismo, un B&B, un allevamento, una pensione per animali, o altro ancora.



Prezzo € 300.000

scarica scheda vedi zona (mappa)

« torna alla ricerca

richiedi informazioni sull'immobile:

invia
cancella